


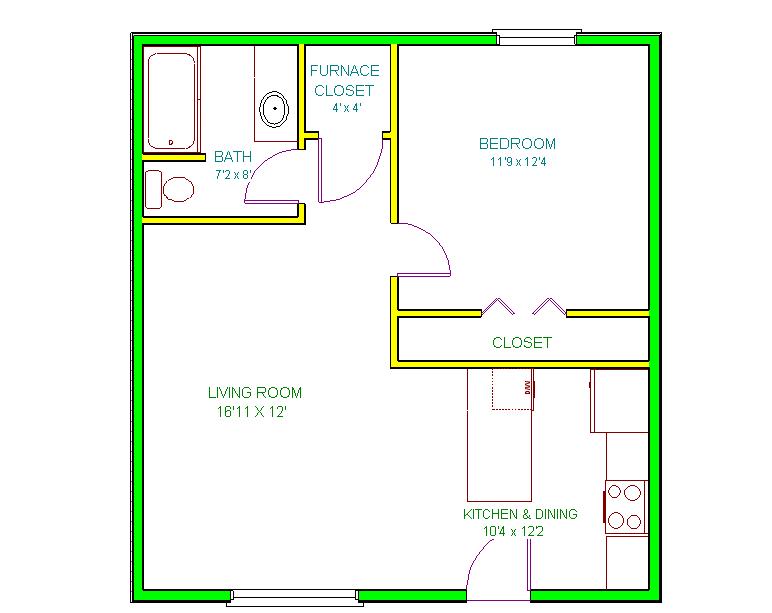
This 1-bedroom, 1-bath apartment is conveniently located within walking distance of Truman State University and ATSU Medical and Dental Schools. The unit features free on sight laundry for added convenience. Residents enjoy peace of mind with 24-hour maintenance, along with snow removal and lawn care provided. The apartment is pet-friendly with an additional monthly fee. A perfect option for those seeking comfort, convenience, and a prime location near campus.
Apartment Complex
1
1

Broker/Agent