


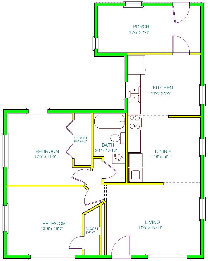
Charming 2-bedroom, 1-bath rental located within easy walking distance of ASTU Campus and Truman State University. This home comes equipped with essential appliances, including a range, refrigerator, and a washer and dryer for convenient, no-hassle living. Lawn care and snow removal are included, taking the maintenance burden off your shoulders. Off-street parking adds secure, convenient access. Pet-friendly with an additional monthly fee. Please contact our office about possible availability!
House
2
1

Broker/Agent