


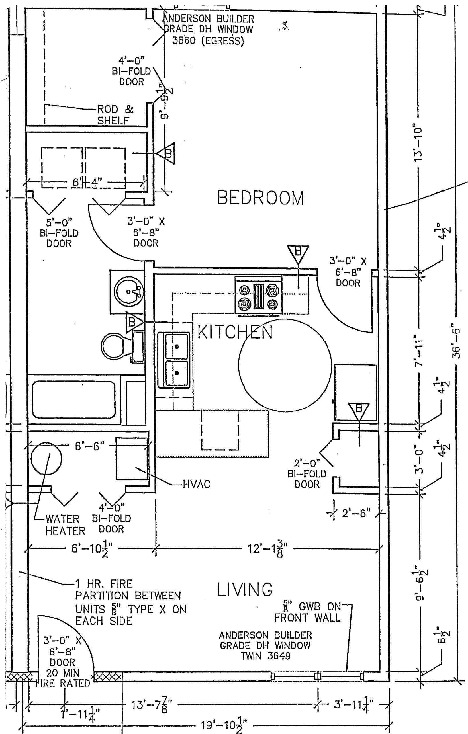
These one bedroom, one bathroom apartments are conveniently located just a short walk from the ATSU campus, making it an ideal home for students seeking comfort and convenience. Each unit features a full kitchen with all appliances included, along with the added convenience of an in-unit washer and dryer. Enjoy central heating and air conditioning to keep you comfortable year-round.
Residents benefit from 24-hour maintenance service, as well as lawn care and snow removal, allowing for worry-free living. These apartments are rented exclusively to ATSU medical and dental students, providing a quiet and focused community environment close to campus.
15 plex
1
1

Broker/Agent